La Verneda
Propuesta para la construcción de un conjunto de 60 viviendas sociales en Sant Martí, Barcelona
-mención honorable en concurso -
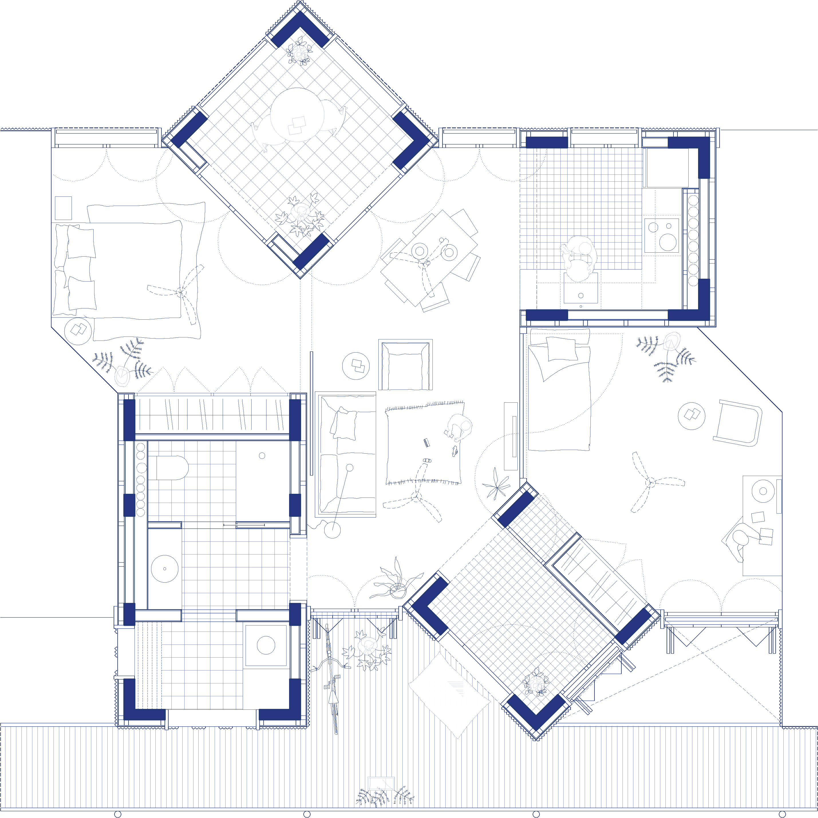
Este proyecto presenta un nuevo edificio de viviendas que integra consideraciones arquitectónicas, económicas, ecológicas, sociales y urbanas en una propuesta urbana sostenible.

