Carambola
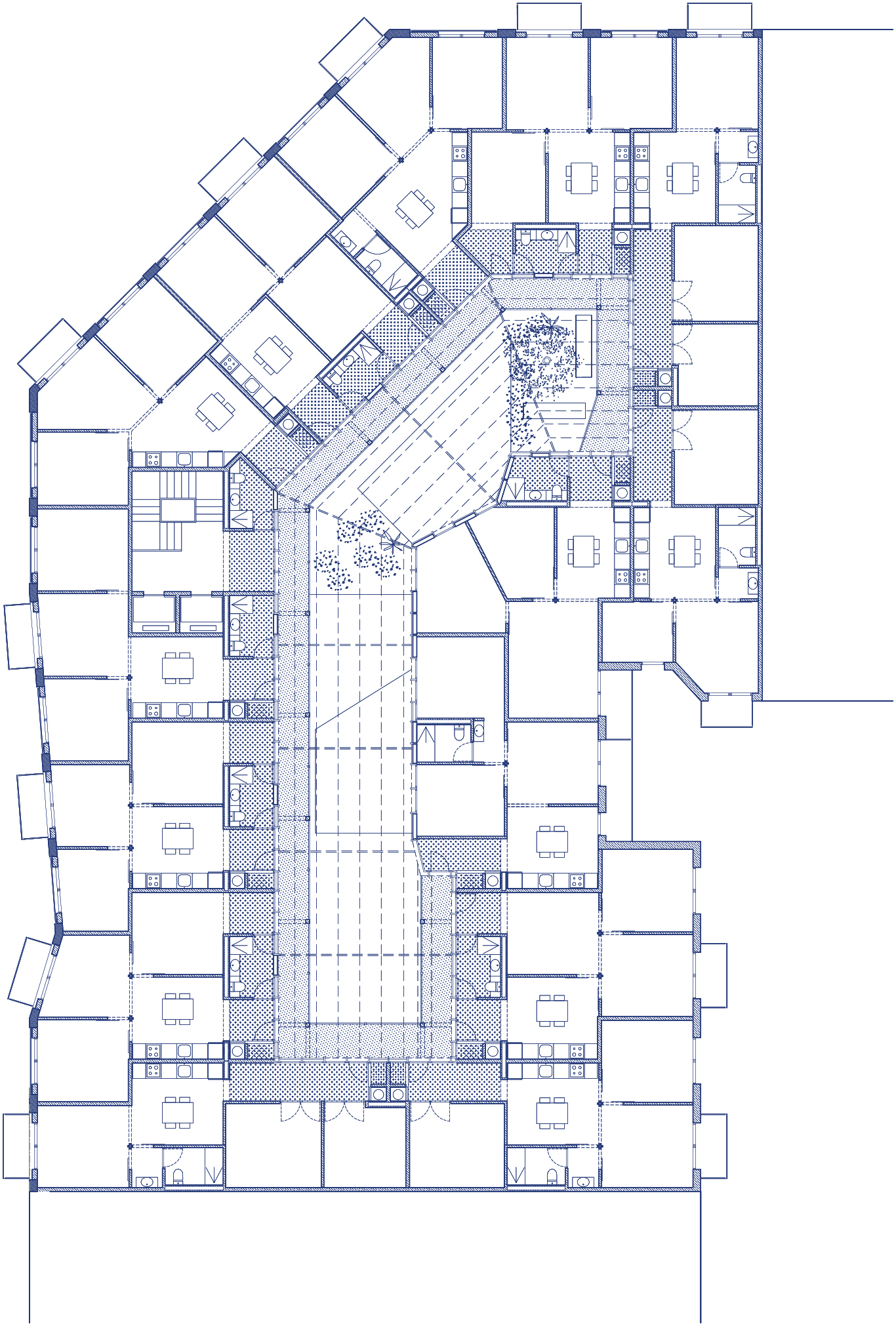
Propuesta para la Construcción de un edificio de viviendas en Gran Via de les Corts Catalanes 724-726 (Bingo Billares), Barcelona
![]()
Propuesta para la Construcción de un edificio de viviendas en Gran Via de les Corts Catalanes 724-726 (Bingo Billares), Barcelona
- concurso -




