Periple

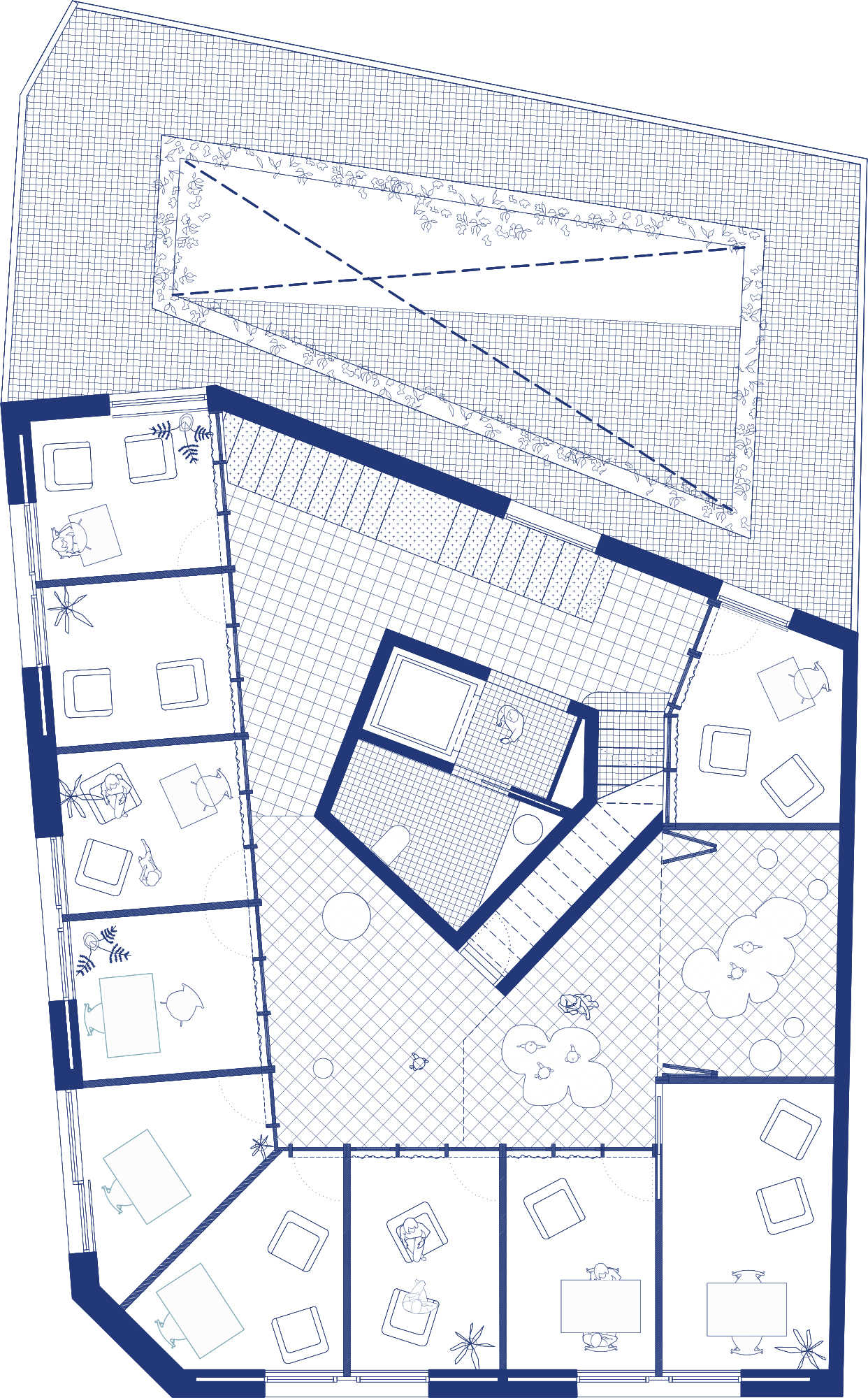
Propuesta para la construcción de un espacio
de mujeres e igualdad en Valencia

- concurso-
























2022

Equipo

Marta Benedicto, Ivet Gasol, Carlota de Gispert, Anna Llonch, Lucia Millet y Clara Vidal
Jesús Fajer, Gonzalo Macías, Adrián Maldonado y Patricia Parra


Imágenes
Anfibio