︎
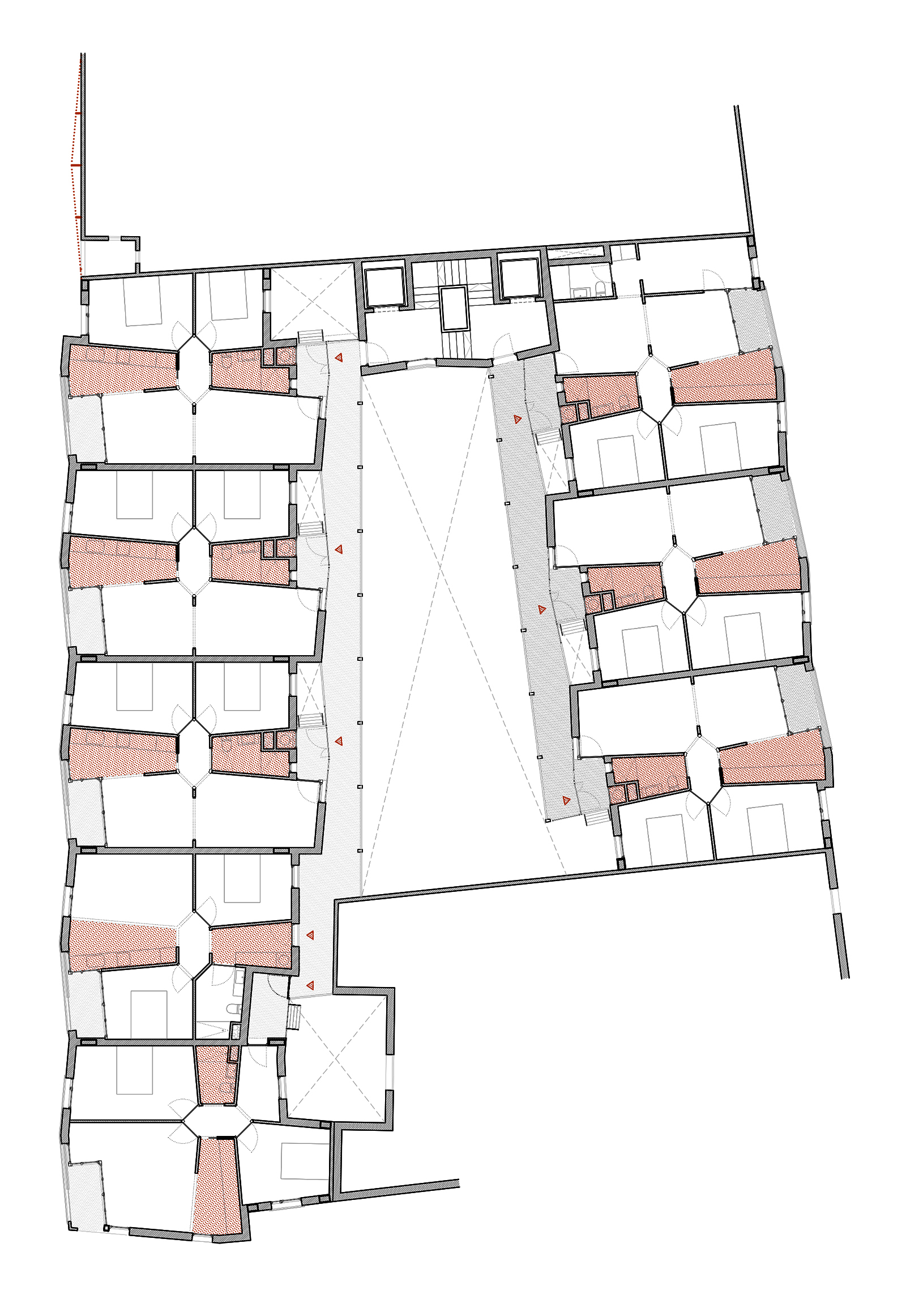
Trapezi
Finalistas en el concurso de Incasòl de 35 VPO en la Pl. Alfonso Comín, Sta. Coloma.